Porzione di bifamiliare in vendita

Chieri, Via roaschia alta - Roaschia
€ 520.000
8 locali 8 locali
200 Mq 200 Mq
3 bagni 3 bagni

Porzione di bifamiliare in vendita

Chieri, Via roaschia alta - Roaschia

Descrizione annuncio

In strada Roaschia, all’interno di un complesso ben tenuto nelle parti comuni e circondato dal verde è collocata una villa libera su tre lati.

Il vialetto conduce all’ingresso principale e ad un ampio porticato, ideale per collocare un salottino e per trascorrere piacevoli momenti all’aperto.

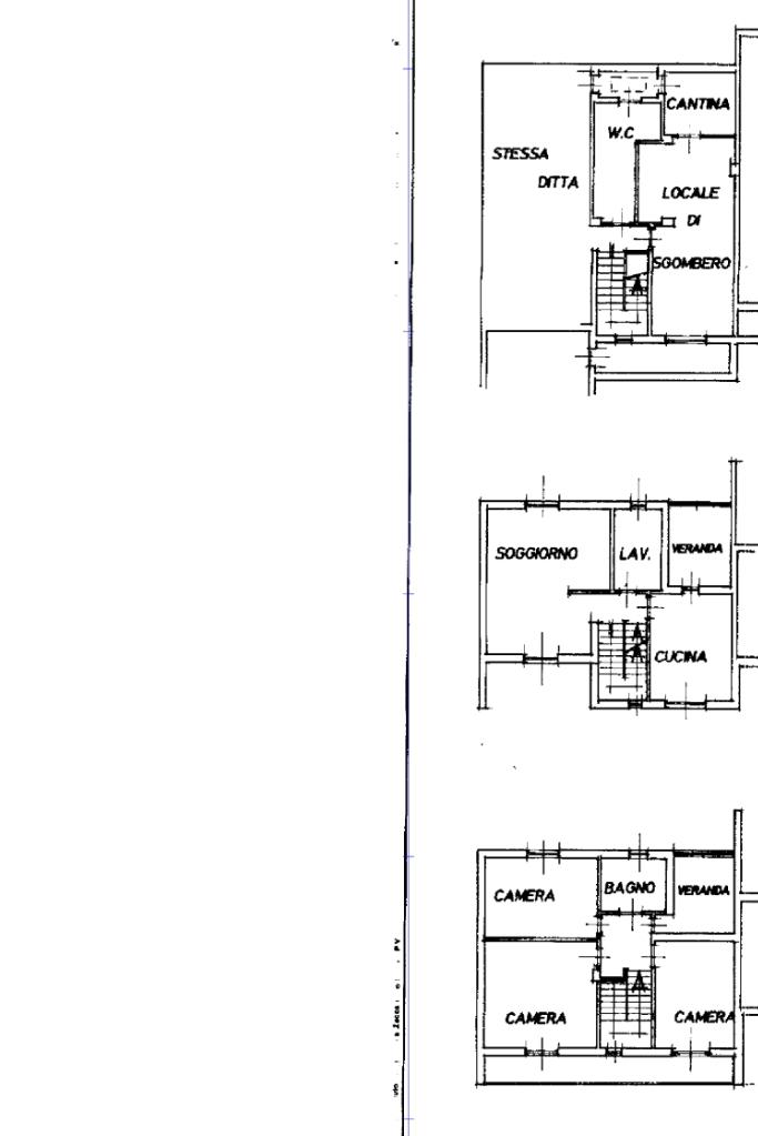
La soluzione si sviluppa su più piani. L’ingresso apre direttamente sulla zona giorno; il salone, è ampio ed è attiguo alla cucina abitabile. Questi spazi si presentano molto luminosi grazie alla presenza di porte finestre con uscita sul giardino che circonda l’abitazione su tre lati. A servizio della zona giorno è presente un primo bagno con doccia.

Al piano superiore sono presenti tre camere da letto, una matrimoniale con uscita sul balcone e due camerette; tutte le stanze sono dotate di parquet. Completano il piano un altro bagno dotato di vasca ed un terrazzino verandato utilizzato come stireria.

Al piano interrato è presente un’ampia tavernetta ed una lavanderia. L’autorimessa, collegata internamente all’abitazione, è di comoda metratura.

Il riscaldamento è autonomo, a metano; gli infissi sono in legno con doppio vetro e sono dotati di inferriate ed è inoltre presente l’antifurto.

La villa è caratterizzata da una posizione tranquilla ed immersa nel verde; risulta strategica sia per il raggiungimento di Torino sia al centro di Chieri.

Mostra tutto

Nelle vicinanze

Trasporto pubblico Trasporto pubblico
Chieri
Chieri
2,7 Km
Valle Ceppi
Valle Ceppi
200 m
Benso
Benso
250 m
Scuole Scuole
Scuole
1,1 Km
IST - International School of Turin
1,4 Km
Scuola Elementare "Podio"
1,6 Km
Scuola Primaria Nostra Signora della Scala
2,8 Km
Scuola Statale "Maddalena"
3,0 Km
Farmacia Farmacia
Cento Torri
1,1 Km
Farmacia Comunale
1,2 Km
Nuova Farmacia Claretti Pacioni
1,8 Km
Piazza
2,2 Km
Farmacia Comunale 2
2,3 Km
Supermercati Supermercati
Penny
1,0 Km
Mercatò
1,7 Km
Carrefour Market
1,8 Km
In's Mercato
2,7 Km
Ekom
2,8 Km
Negozi Negozi
Sweet Bio Delicious
1,2 Km
Benetton
2,1 Km
Tutto Moda
2,3 Km
Giordo Salvatore
2,3 Km
Wood Sas di Bosco Franco & C.
2,5 Km
Ristoranti Ristoranti
Ristorante Pizzeria del Pino
1,1 Km
Pizza Mania
1,1 Km
Agriturismo San Felice
1,9 Km
Cascina Lautier
2,1 Km
Todra Griglieria Ristopub
2,1 Km
Mostra tutto

Caratteristiche

Rif.:
61182627
Piano:
Su più livelli di 1
Totale piani:
1
Box:
1
Balconi:
1
Terrazzi:
1
Mostra tutto
Prezzo Prezzo
€ 520.000
Rata mutuo Rata mutuo
€ 2.464 / mese
Spese annue Spese annue
€ 400
Proponi il tuo prezzoProponi il tuo prezzo
Immobile valutato con T·Valuta

Classe Energetica

F
F
F
F
F
F
F
F
F
EP globale non rinnovabile:
212.30 kW h/m² anno
EP invernale del fabbricato:
EP estiva del fabbricato:
Anno di costruzione:
1991
Riscaldamento:
Autonomo
Tipo impianto:
A radiatori
Tipo alimentazione:
Metano

Ti interessa visionare l'immobile?

Fissa un appuntamento  Fissa un appuntamento

Richiedi informazioni

Clicca su Leggi per aprire l'informativa
* Questi campi sono obbligatori

Calcola il tuo mutuo

Semplice e senza impegno
Anticipo

( % )
Mutuo

( % )

pochi semplici passi

inserisci i tuoi dati
Questionario completato
Grazie per aver richiesto un appuntamento senza impegno con un nostro Consulente del Credito e Assicurativo.

Hai inserito correttamente tutti i dati necessari e a breve riceverai una e-mail con un link da convalidare per inviare i tuoi dati.
Affiliato
Tecnochieri Sas
Via Principe Amedeo, 34 10023 Chieri (TO)

Il nostro staff


  • Dario Gullace
    Affiliato

  • Michela Conti
    Coordinatrice

  • Cinzia Scarso
    Affiliata
Via Principe Amedeo, 34 10023 Chieri (TO)
Zona: Chieri - Annunziata - Stazione - Roaschia - Lazzaretti
Mostra su mappa
Orari: dal lunedì al venerdì 09.00 - 12.30/15.00 -19.30; sabato 09.00 - 12.30/15.00- 18.00
Affiliato
Tecnochieri Sas
Via Principe Amedeo, 34 10023 Chieri (TO)

2026 Tecnocasa Franchising S.p.A. - P. IVA 08365160152 - Via Monte Bianco 60/A 20089 Rozzano (MI). Ogni agenzia ha un proprio titolare ed è autonoma. Privacy policy | Policy utilizzo | Cookie policy