Negozio in vendita

Chieri, Via Corso Torino - Roaschia
€ 198.000
3 locali 3 locali
150 Mq 150 Mq
1 bagno 1 bagno

Negozio in vendita

Chieri, Via Corso Torino - Roaschia

Descrizione annuncio

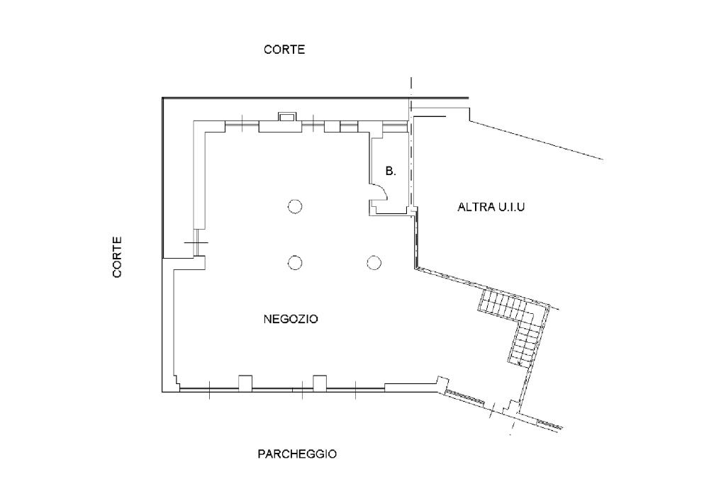
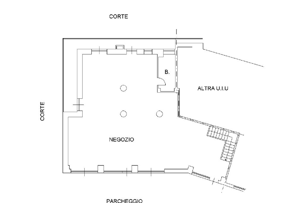
In posizione strategica lungo Corso Torino, principale collegamento tra la città di Chieri e Torino, proponiamo spazioso locale commerciale di 145 mq, situato in zona di forte passaggio e con ottima visibilità. L’immobile dispone di quattro ampie vetrine fronte strada, ideali per garantire massima esposizione e luminosità.

L’ambiente interno è stato finemente ristrutturato, gli spazi si configurano in due sale molto spaziose ed è inoltre presente un servizio.

Completa la proprietà un’ampia area di parcheggio condominiale.

Il locale è locato ad un’attività ben avviata. Ideale ad uso investimento.

Mostra tutto

Nelle vicinanze

Trasporto pubblico Trasporto pubblico
Chieri
Chieri
1,6 Km
Tetti Borra
Tetti Borra
40 m
Fiume
Fiume
260 m
Ricariche auto elettriche Ricariche auto elettriche
LIDL Chieri
2,4 Km
Scuole Scuole
Scuole
380 m
Scuola Primaria Nostra Signora della Scala
1,6 Km
IST - International School of Turin
1,8 Km
Istituto d'Istruzione Superiore "B.Vittone"
1,9 Km
Scuola Media Statale Mario Ludovico Quarini
2,0 Km
Farmacia Farmacia
Cento Torri
70 m
Nuova Farmacia Claretti Pacioni
680 m
Piazza
1,0 Km
Farmacia Comunale 2
1,1 Km
Farmacia Burzio
1,2 Km
Ospedali Ospedali
Ospedali
2,2 Km
Supermercati Supermercati
Penny
160 m
Carrefour Market
620 m
Mercatò
630 m
In's Mercato
1,5 Km
Ekom
1,6 Km
Negozi Negozi
Benetton
930 m
Tutto Moda
1,1 Km
Giordo Salvatore
1,1 Km
Wood Sas di Bosco Franco & C.
1,3 Km
Il Forno di Ronco
1,5 Km
Bar Bar
Corso Matteotti 69
1,9 Km
Il Dolce Caffè
2,2 Km
Ristoranti Ristoranti
Pizza Mania
130 m
Kombu
980 m
Todra Griglieria Ristopub
980 m
Eataly in Collina
1,0 Km
Old Building Pub Pizzeria
1,0 Km
Mostra tutto

Caratteristiche

Rif.:
61146475
Piano:
Terra di 5 con ascensore
Totale piani:
5
Balconi:
1
Condizionamento:
Autonomo
Ascensore:
Mostra tutto
Prezzo Prezzo
€ 198.000
Rata mutuo Rata mutuo
€ 938 / mese
Spese annue Spese annue
€ 500
Proponi il tuo prezzoProponi il tuo prezzo

Classe Energetica

C
C
C
C
C
C
C
C
C
EP globale non rinnovabile:
45.04 kW h/m² anno
EP invernale del fabbricato:
EP estiva del fabbricato:
Anno di costruzione:
1970
Riscaldamento:
Autonomo
Tipo impianto:
A radiatori
Tipo alimentazione:
Metano

Ti interessa visionare l'immobile?

Fissa un appuntamento  Fissa un appuntamento

Richiedi informazioni

Clicca su Leggi per aprire l'informativa
* Questi campi sono obbligatori

Calcola il tuo mutuo

Semplice e senza impegno
Anticipo

( % )
Mutuo

( % )

pochi semplici passi

inserisci i tuoi dati
Questionario completato
Grazie per aver richiesto un appuntamento senza impegno con un nostro Consulente del Credito e Assicurativo.

Hai inserito correttamente tutti i dati necessari e a breve riceverai una e-mail con un link da convalidare per inviare i tuoi dati.
Affiliato
Tecnochieri Sas
Via Principe Amedeo, 34 10023 Chieri (TO)

Il nostro staff


  • Dario Gullace
    Affiliato

  • Michela Conti
    Coordinatrice

  • Cinzia Scarso
    Affiliata
Via Principe Amedeo, 34 10023 Chieri (TO)
Zona: Chieri - Annunziata - Stazione - Roaschia - Lazzaretti
Mostra su mappa
Orari: dal lunedì al venerdì 09.00 - 12.30/15.00 -19.30; sabato 09.00 - 12.30/15.00- 18.00
Affiliato
Tecnochieri Sas
Via Principe Amedeo, 34 10023 Chieri (TO)

2026 Tecnocasa Franchising S.p.A. - P. IVA 08365160152 - Via Monte Bianco 60/A 20089 Rozzano (MI). Ogni agenzia ha un proprio titolare ed è autonoma. Privacy policy | Policy utilizzo | Cookie policy